Встраиваемая в стол вытяжка V-ZUG DSMS представляет собой превосходный выбор для современной кухни. Этот продукт отличается своим элегантным дизайном, который с легкостью впишется в любой интерьер. Черный цвет придает вытяжке строгости и делает ее универсальной, а стеклянный фасад добавляет изысканности и эстетики.
Основной функцией этого устройства является очистка воздуха от неприятных запахов и жира. С этой задачей вытяжка справляется благодаря двум режимам работы: отводу и циркуляции. В режиме отвода воздух выводится за пределы кухни, а в режиме циркуляции проходит через фильтры и возвращается обратно в помещение.
Устройство оснащено тремя скоростями работы, что позволяет выбрать наиболее подходящий режим в зависимости от интенсивности приготовления пищи. Для более сильной загрязненности воздуха предусмотрен интенсивный режим.
Одной из особенностей вытяжки является функция «Остаточный ход». Эта функция позволяет устройству продолжать работать после выключения на некоторое время, чтобы полностью очистить воздух от остаточных запахов и жира.
Кроме того, вытяжка оборудована системой аспирации по периметру. Эта система обеспечивает равномерное и эффективное всасывание воздуха по всей поверхности устройства.
Для очистки воздуха от жира используются два жироулавливающих фильтра. Их эффективность контролируется с помощью индикатора загрязнения, который своевременно сообщит о необходимости их замены или очистки. Если необходимо, можно установить угольный фильтр для дополнительной очистки воздуха от неприятных запахов.
Управление вытяжкой осуществляется с помощью сенсорных кнопок, расположенных на электронной панели. На цифровом дисплее отображается информация о текущем режиме работы, скорости вентиляции и состоянии фильтров.
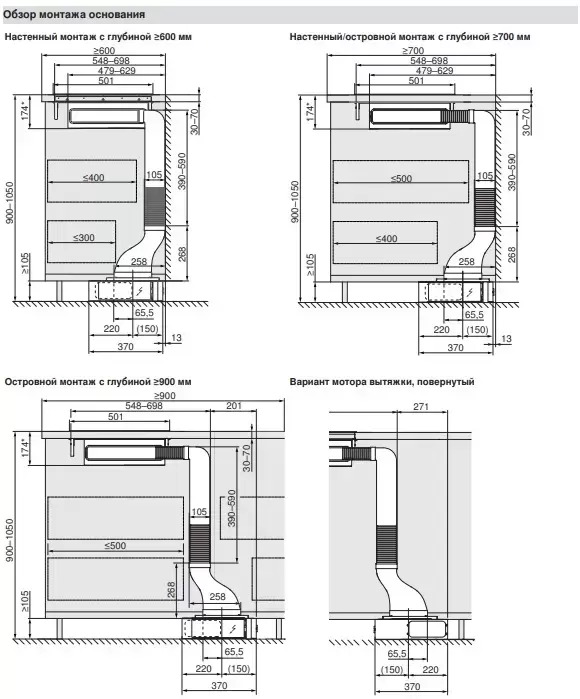
Вытяжка V-ZUG DSMS обладает компактными размерами и весом, что облегчает ее установку и эксплуатацию. Тем не менее, несмотря на свои небольшие размеры, устройство обладает высокой производительностью и эффективностью работы.
Это устройство отличается высоким классом энергопотребления, что делает его экономичным и экологичным. Несмотря на высокую мощность, уровень шума при работе вытяжки остается приемлемым даже на максимальной скорости и в интенсивном режиме.
В общем, встраиваемая в стол вытяжка V-ZUG DSMS — это надежное и функциональное устройство, которое станет незаменимым помощником на любой современной кухне.
Для покупки товара в нашем интернет-магазине выберите понравившийся товар и добавьте его в корзину. Далее перейдите в Корзину и нажмите на «Оформить заказ» или «Быстрый заказ».
Когда оформляете быстрый заказ, напишите ФИО, телефон и e-mail. Вам перезвонит менеджер и уточнит условия заказа. По результатам разговора вам придет подтверждение оформления товара на почту или через СМС. Теперь останется только ждать доставки и радоваться новой покупке.
Оформление заказа в стандартном режиме выглядит следующим образом. Заполняете полностью форму по последовательным этапам: адрес, способ доставки, оплаты, данные о себе. Советуем в комментарии к заказу написать информацию, которая поможет курьеру вас найти. Нажмите кнопку «Оформить заказ».
Оплачивайте покупки удобным способом. В интернет-магазине доступно 3 варианта оплаты:
- Наличные при самовывозе или доставке курьером. Специалист свяжется с вами в день доставки, чтобы уточнить время и заранее подготовить сдачу с любой купюры. Вы подписываете товаросопроводительные документы, вносите денежные средства, получаете товар и чек.
- Безналичный расчет при самовывозе или оформлении в интернет-магазине: карты Visa и MasterCard. Чтобы оплатить покупку, система перенаправит вас на сервер системы ASSIST. Здесь нужно ввести номер карты, срок действия и имя держателя.
- Электронные системы при онлайн-заказе: PayPal, WebMoney и Яндекс.Деньги. Для совершения покупки система перенаправит вас на страницу платежного сервиса. Здесь необходимо заполнить форму по инструкции.
Экономьте время на получении заказа. В интернет-магазине доступно 4 варианта доставки:
- Курьерская доставка работает с 9.00 до 19.00. Когда товар поступит на склад, курьерская служба свяжется для уточнения деталей. Специалист предложит выбрать удобное время доставки и уточнит адрес. Осмотрите упаковку на целостность и соответствие указанной комплектации.
- Самовывоз из магазина. Список торговых точек для выбора появится в корзине. Когда заказ поступит на склад, вам придет уведомление. Для получения заказа обратитесь к сотруднику в кассовой зоне и назовите номер.
- Постамат. Когда заказ поступит на точку, на ваш телефон или e-mail придет уникальный код. Заказ нужно оплатить в терминале постамата. Срок хранения — 3 дня.
- Почтовая доставка через почту России. Когда заказ придет в отделение, на ваш адрес придет извещение о посылке. Перед оплатой вы можете оценить состояние коробки: вес, целостность. Вскрывать коробку самостоятельно вы можете только после оплаты заказа. Один заказ может содержать не больше 10 позиций и его стоимость не должна превышать 100 000 р.
Дополнительная вкладка, для размещения информации о магазине, доставке или любого другого важного контента. Поможет вам ответить на интересующие покупателя вопросы и развеять его сомнения в покупке. Используйте её по своему усмотрению.
Вы можете убрать её или вернуть обратно, изменив одну галочку в настройках компонента. Очень удобно.
